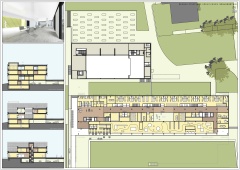
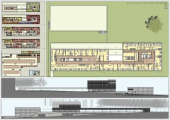
| aktuell | wohnen | stadthaus mit tiefgarage und neugestaltung festwiese, 8280 kreuzlingen | ||||||||
|---|---|---|---|---|---|---|---|---|---|---|
| ausgewählte arbeiten | schule + sport | 2015 | ||||||||
| werkverzeichnis | verschiedenes | auftrag: projektwettbewerb, 1. rang | ||||||||
| über uns | machbarkeitsstudien | auftraggeberin: stadt kreuzlingen | ||||||||
| links | wettbewerbe | projekt: niggli+zbinden, st. gallen | ||||||||
|
||||||||||
|
||||||||||